Dieses vielseitige Wohn- und Geschäftshaus, das im Jahr 1952 errichtet wurde, besticht durch beste Innenstadtlage! Domplatz und Prinzipalmarkt sind in nur 3 Minuten fußläufig zu erreichen! Ein weiterer großer Pluspunkt dieser Immobilie ist das Erweiterungspotenzial durch die Aufstockung einer Etage!
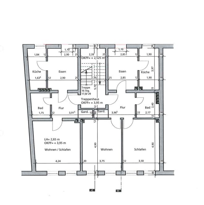
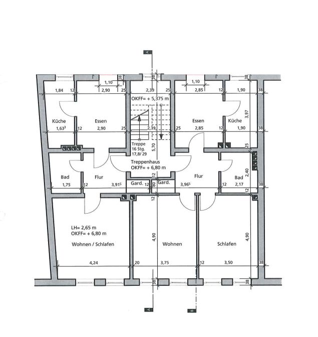
Die Immobilie beeindruckt mit einer großzügigen Gesamtwohnfläche von ca. 335 m², verteilt auf sechs individuell gestaltete Wohneinheiten. Die Wohnungen mit 2- bis 3-Zimmer-Grundrissen variieren in ihrer Größe zwischen 45 und 65 m² und erfreuen sich einer hohen Nachfrage auf dem Mietmarkt.
Besonders hervorzuheben ist das Dachgeschoss, das mit einer Ausbaureserve von ca. 100 m² hervorragende Erweiterungsmöglichkeiten für zusätzlichen Wohnraum bietet. Darüber hinaus lassen sich auch noch Balkone anbauen, um den Wert der Wohnungen zu steigern.
Das Erdgeschoss umfasst zudem eine attraktive Gewerbefläche von insgesamt 111 m², aufgeteilt in zwei Einheiten mit 51 m² und 60 m². Diese Flächen bieten vielseitige Nutzungsmöglichkeiten und profitieren von ihrer exponierten Lage.
Das Objekt generiert derzeit eine Jahresnettokaltmiete von 73.562,64 €, wobei eine Wohneinheit mit ca. 51 m² momentan bewusst leer steht. Dies ermöglicht eine unmittelbare Modernisierung oder eine Anpassung der Miete durch Neuvermietung. Bis 2026 laufen vier weitere Mietverträge aus, wodurch auch hier Potenziale für Modernisierungsmaßnahmen oder Mietanpassungen gegeben sind. Durch diese Optimierungen ist eine Jahres-Soll-Miete von ca. 85.632,00 € realistisch. Zusätzlich eröffnet die Ausbaureserve weiteres Einkommenspotenzial, um die Rendite weiter zu steigern.
Die Kombination aus zeitloser Architektur und einer zentralen, gefragten Lage macht diese Immobilie zu einer besonders attraktiven Investitionsmöglichkeit. Sie bietet eine solide Basis für nachhaltigen Erfolg am Immobilienmarkt und vereint langfristige Wertstabilität mit vielfältigen Entwicklungsperspektiven.
Sie kaufen provisionsfrei!
