Rarität und Liebhaberobjekt zugleich!
Die Ladenfläche, in der sich das bekannte Antiquariat Solder befindet – bekannt als zentrale Filmkulisse der ZDF-Kultserie *Wilsberg* – steht zum Verkauf. Seit 1997 dient dieser Ort als regelmäßiger Drehort der beliebten Krimireihe und gehört zu den bekanntesten Schauplätzen im deutschen Fernsehen.
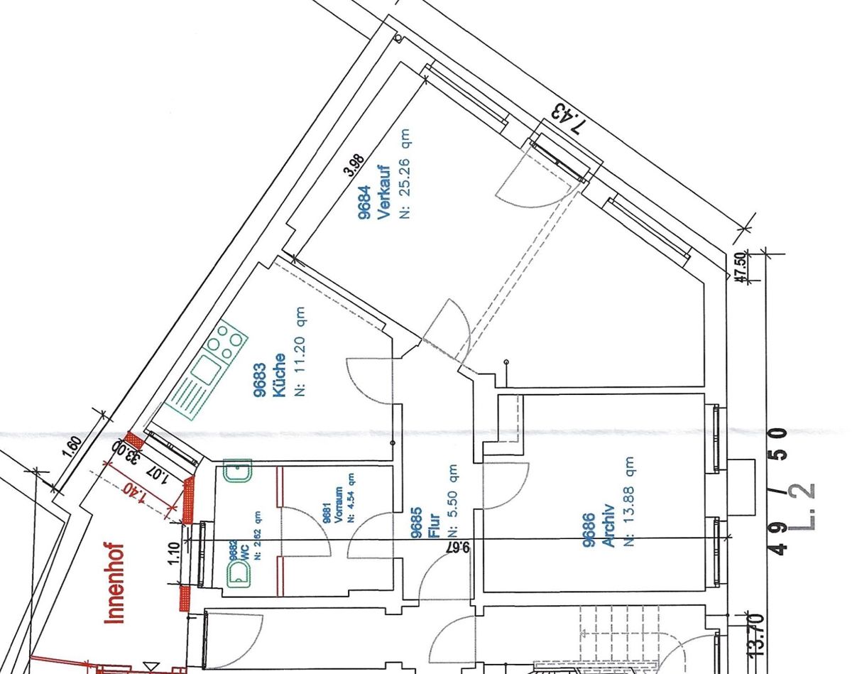
Das Ladenlokal mit einer Größe von ca. 63 m² Nutzfläche verteilt sich auf die attraktive Ladenfläche mit großen, attraktiven Fensterflächen, einen Archivraum, sanitäre Einrichtung sowie einen Aufenthaltsraum mit Zugang zum gemeinschaftlichen Innenhof!
Im Kellergeschoß befindet sich ein dazugehöriger Lagerraum sowie ein zusätzliches WC.
Mit dem Verkauf bietet sich eine außergewöhnliche Gelegenheit: Ein Drehort, an dem seit fast 30 Jahren eine der beliebtesten deutschen Krimiserien produziert wird, kann neuer Eigentum werden. Dieser Umstand verleiht der Immobilie nicht nur kulturellen Wert, sondern auch einen ganz besonderen Charme.
